STACKING DIS-SIMILAR YAGIS AND LOOP YAGIS
One of the most asked questions about antennas today is "How should I stack all these VHF antennas on my tower?" The problem is that most hams are lucky to have one tower and then they try to stuff antennas for ten VHF/ UHF bands on that same lone tower. Hanging several wire antennas off the heavily loaded structure is typical as well. So how do you plan such a setup? The answer may be found by looking at a few spec sheets and making some simple calculations.
First we need to understand a few things about antennas. Every antenna has a collecting area to snag errant electromagnetic waves. It is no accident that signal strengths are measured in microvolts per meter. The truth is that a larger antenna can intercept more energy by simply occupying more physical area. Sounds simple enough! This is also the reason that apparent path loss goes up with frequency. At higher frequencies, the antenna is smaller and cannot collect the same amount of energy that it's lower frequency sister antenna does. The collecting area of any antenna is called its aperture. Generally, the aperture of most amateur VHF directional antennas is larger than the physical frontal outline. Yagis have a much larger aperture. Arrays of half waves, such as collinears, have smaller apertures extending just beyond the physical structure, while parabolic antennas have apertures that are slightly smaller than the physical size of the dish.

FIGURE 1.
If an antenna is sited on a mast, as long as nothing is located within the aperture area, that antenna will function normally. If you are stacking two antennas for more gain, you should align the antennas so that their apertures just touch. This produces a maximum gain effect. The two apertures have merged into one big aperture with twice the square footage or frontal area of a single antenna. twice the area means a 3 dB increase. You can stack antennas in both vertical and horizontal planes. A typical DX arrangement for a high gain antenna system is a quad array, or four stack array. It combines multiple antennas in bith the e and h planes, as seen below. Note that the apertures are just touching. If they are overcoupled with smaller stacking distances, the collecting ability is reduced, but sidelobes will be reduced as well.

FIGURE 2.
We try to provide suitable stacking distances for all of our antennas. This information is always printed on the specification sheet for the individual antenna. For horizontally polarized antennas, the vertical stacking distance is referred to as the h-plane or magnetic field plane. The e plane or electric field extends out along the axis of the elements. In the case of horizontally polarized yagis, this would be the side to side stacking dimension as shown above. Loop yagis are slightly different in that you have no linear rod elements, but the same rules apply. You can see from the figures, that the stacking distance is exactly the diameter of the aperture. One half of the stacking distance is the apparent radius of the aperture. Note also that, for yagis, the e plane aperture is slightly wider than the h plane dimension.
So how do you arrive at a proper spacing number for different bands? If you are stacking two antennas on different bands, you must look at the stacking distance for each antenna and locate the antennas so neither aperture sees the other antenna aperture. Let's take an example. We wish to stack a DSFO144-12 along with a DS222-10RS on the same mast. The 144-12 stacking distance (h-plane) is 10 ft 8" while the DS222-10RS is 74" . Take half of the stacking distance for the lowest frequency antenna and you have the extent of the aperture boundary for that antenna. In this case it is 5 ft 4 inches, or 64". Do the same for the other antenna. The correct distance for zero interaction, then, is 64 plus 37 inches, or 101" total spacing. Simple enough. There is no way either antenna will be bothered by the other PERIOD!

FIGURE 3.
Most people would quickly run out of room with this method, however, so we can fudge the numbers slightly. If you place the smaller antenna so that it's aperture just approaches the physical location of the lower frequency antenna, you have accomplished almost the same thing. True, there is some slight interaction, as seen below.

FIGURE 4.
The higher frequency antenna, (BAND #2) has absolutely no metal within its aperture, and will work flawlessly. The lower frequency antenna now has some metal within it's aperture, but the size is small. The lower frequency aperture is relatively large as well, so only a very minor "hit" is incurred.You should also check the stacking distance for the higher frequency antenna. If it is a longer boom, it may have a large aperture as well. In our case shown above, one half of 74" is 37" for the DS222-10RS. This is much less than our 101" spacing in the previous example. The 222 yagi will be happy, while the 144 yagi will only grumble slightly at the small obstruction in its' large aperture. In truth, there will be minimal reaction with the DSFO144-12 as well. The reason being that with the larger aperture of the 144 yagi, more metal may be introduced within that space with less effect than with a smaller aperture antenna. The DS222-10RS actually fills up only a small part of the 144 MHz aperture. You can actually do a rough calculation by measuring the blocking area of the DS222-10RS. A few 24" elements, a 1 1/4" diameter boom, the mast plate, driven element area, coax cable, and last but not least, the main mast it is mounted on are all preventing collection of those little microvolts per meter. The blockage area you come up with is a small percentage of the total aperture of the DSFO144-12. let's say it is 3% of the larger area. The ratio of blockage vs aperture can be expressed as a loss in decibels. If 97% of the aperture is untouched, (ie. not blocked) then comparing it with 100% of aperture area, and no blockage, produces a loss of only 0.15 db. A rough idea of the potential loss can be estimated this way by comparing the blockage ratio and converting to a decibel amount. For instance, a 50% area blockage is a 3 dB loss.
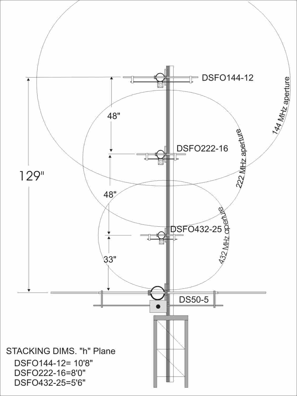
Here below, is a typical installation of 144, 222, and 432 antennas on one 13 ft mast. In this case, the intrepid DXer has decided to stack two DSFO144-12 yagis, and fit 222 and 432 in the middle somewhere. Here is how you might do it. Note that we tried to keep the antennas away from each other, and missed with the 222 yagi by only one inch.(47")

FIGURE 5.
"All well and good", you say, "but I want to stuff six thru 1296 on my tower, and I only have a 13 ft mast available." We have to get serious and ask ourselves how important is that new band. If you must have all those antennas on the tower, you can cheat a little more! Suppose you cannot fit all the remaining antennas in the space allotted. What can you do? The next compromise produces a bit more pain. Your remaining choice is to sacrifice the aperture minimum distance for the smaller antenna as well.

FIGURE 6.
In our case, the DS222-10RS was 37" away from the DSFO144-12. If you reduce that spacing under 37", the same procedures apply here with the smaller antenna now having a bigger antenna (and more blockage) protruding into its collecting area, which is smaller to begin with. The hit to the smaller antenna will be greater than that of the larger antenna, since the DSFO144-12 is a bigger antenna and the aperture it is intruding upon is much smaller. Still, if you calculate the numbers and measure all the blockage, you still end up with a figure that is a fraction of a decibel of loss, with some pattern degradation. This is a small price to pay for adding an extra band on your tower. Now an EMEer would rather die than give up 0.4 dB , but for a troposcatter or meteor scatter station, 0.4 dB is hardly missed. In my experience, unless you can instantly switch back and forth between them, a difference of 1 dB is not noticeable in the short term. 2 dB would be barely noted. Over a period of a few weeks of observation, you may be able to detect that single decibel!
The 50 MHz band poses the biggest problem in any "Christmas Tree" installation. Being the lowest VHF band, it has the biggest aperture. Here is a typical installation. The DS50-5 wants to be stacked at about 19 ft, making its' aperture radius about 9 1/2 ft! The best way to plan your stack, is to locate the higher frequency yagis close to the 50 MHz yagi. and keep the 50 MHz yagi out of the higher frequency antenna's aperture. This will insure that the higher frequency yagis function perfectly. The 144 MHz yagi goes as far away as possible up on top of the mast. Keep maximum separation between 144 and 432 MHz to prevent harmonic coupling problems. Of course, the 432 and 222 yagis are within the 50 MHz aperture, but the 144 yagi is not. The two small yagis will hardly block the 50 MHz yagi at all. I have included some dimensions to demonstrate the process. I also included approximate aperture sizes to illustrate the technique.

FIGURE 7.
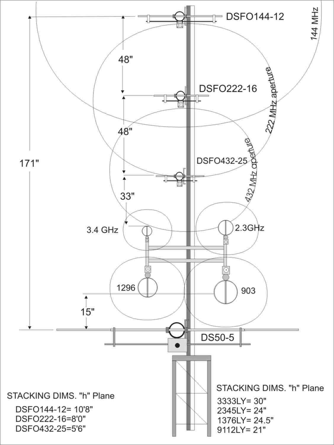
For a 222 or 432 yagi directly above the 50 MHz elements, there is not nearly enough metal presented by the six meter beam elements to make a ground plane. These antennas will function normally if these minimum spacings are adhered to. There should be no beam uptilt on 432 or 222 MHz, as a result of the close six meter beam location. The short wavelengths at 222 or 432 make the several feet spacing between 50 MHz elements appear transparent when placed below the higher frequency yagis. This is good. I once had a temporary antenna setup on a temporary tower for a VHF contest. The 222 yagi, a Cushcraft 220B 4.2 wl 222 MHz yagi ended up being mounted about 12" above a 34 ft boom six meter yagi! Both antennas functioned very well! I am sure the 220B lost a few tenths of a decibel forward gain, but the VSWR was unchanged. The pattern seemed good, and I worked all sorts of DX that weekend. I heard Florida on tropo from Maine, and worked most of the East Coast down to Georgia! Now I do not recommend that spacing, but, in a pinch, you can get away with something on occasion. Also note that the highest frequency yagi is closer to the tower with this arrangement, and it will need a shorter flexible coax cable, keeping feedline losses low on 432 where it is needed. The 144 MHz antenna is at the top of the stack and can tolerate more cable in the flex section with less loss. Should you wish to add 903 and the higher bands, you could place them near the bottom of the mast, and move 432 and 222 MHz above them. Here is a typical setup with loop yagis added. Now we have eight bands on a 15 ft mast, and we have given up very little.

FIGURE 8.
You could trim some extra vertical mast height from this arrangement with a small penalty. I would move the DSFO144-12 down closer to the DSFO222-16, but still 64" away from the DSFO432-25. The only additional loss will be at the 222 yagi, because now there is a 144 MHz yagi inside its' aperture. You could reduce the mast length by over two feet by doing this. Not bad getting eight bands on less than a 13 ft mast!! A close look at the above figure will also show the tower mass being within the aperture of the six meter yagi. This could be a potential problem. Depending on how much clutter is at the tower top, there could be some degradation due to blockage. With the typical ham towers this blockage is minimal for six meters or HF antennas located at the tower top. An array at 900 MHz could suffer considerable degradation when located there, however. Avoid putting UHF or lower microwave loop yagis there. Their aperture may be severely blocked.
So what else should we avoid? Those darn parabolic dishes can be a pain. Unlike other yagis, which produce minimal blockage, dishes all appear as large solid lumps of metal to lower frequency antennas. A three ft or four ft dish is a huge area to block off. You could easily lose a few dB on a UHF frequency if such a dish was mounted next to a UHF yagi. Of course, the dish would function normally. Look back at FIGURE 1 for the reason! The same can be said for metal boxes and weatherproof housings such as ones that may contain microwave transverters or power amplifiers. Any metal box that is within the aperture of a microwave loop yagi will cause problems. As an example, I tried to mount a 3456 transverter with an associated 45 watt amplifier up close to my 3456 MHz loop yagi. I actually measured the effects of the box on an antenna range. As soon as the box started to enter the aperture area of the 9112LY (112 element loop yagi) I could see the gain go down. I ended up mounting the box sideways to reduce the footprint, and dropped it 14" below the loop yagi. Any closer, and I could start to see some gain drop off. I saw more than 1/2 dB of reduction with the box fully inside the aperture area. This drop in gain tracks with my mechanical calculations of blockage for the metal box as well. You struggle so hard to get gain at those frequencies. Feed line loss is high. Coax relays are lossy. Power is so hard to generate. So why squander your hard earned antenna gain with a poorly located metal box? You worked hard to get that gain. Why throw it away? The point to remember is the relative size of your obstruction vs. the calculated area of the antenna aperture. At 3456 MHz, the aperture is getting smaller, while the big metal boxes are getting bigger! I just don't put a preamp up there, I want the preamp, the transverter, and the 45 watt power amplifier up there to boot!

FIGURE 9.
So what are the effects to be seen when antennas are located too close in proximity? Well, the first thing that degrades is the pattern. This is usually not noticed by the casual operator. Lobes that may be 25 dB down may jump up to 19 dB down. They are easily missed unless you are looking for them. The next thing that appears may be a VSWR change. Finally, you start losing forward gain. For VSWR changes, you may not notice that right away, unless you have a swept source and a return loss bridge. The typical ham SWR or power meter will only show relatively massive changes in SWR. Usually the SWR meter is measuring only one frequency as well, while the SWR changes should be observed across the entire bandpass of the antenna to really see any changes. My point is that if you do see a VSWR change, the antennas are definitely interacting. I have tried looking at various loop yagis on an antenna range and purposely tried bringing other loop yagis on different bands very close, while watching the bandpass of the antenna under test. With 12 ft long loop yagis, I could bring another antenna (different frequency) in within about 7 or 8 inches, (edge of loop to edge of loop) before I saw the passband or VSWR get perturbed! This is good news for those who want to install enough antennas to blot out the Sun. As long as they are not harmonically related and are on different bands, you can install them with little chance of things going wrong.
We should add a few caveats about other related effects at this point. Caveat #1 has been remarked upon earlier: Any bands that are harmonically related can cause much trouble when the apertures are encroached upon. 144 and 432 MHz come to mind. Ditto for 432 and 1296 MHz. It is a good idea to keep these antennas beyond their aperture dimensions. Some hams have reported bad interactions between such antenna combinations. That being said, I once had eight 4.2 wavelength NBS yagis for 432 mounted in the middle of a 144 four yagi H frame. The 144 yagis were Oliver Swan LPY yagis (Remember them?) Both arrays worked very well. I remember hearing CW echoes off the moon on 432 one day at my moonrise. This was in the days of 2 dB noise figures. The feedline was cheap 3/4" 75 ohm CATV hardline with 50 ohm transformers! Obviously the 432 system was not degraded all that much! The 432 array was obviously within the 144 aperture. The 432 aperture extended slightly past the 144 MHz yagis.
The second caveat involves low level coupling between yagis. Just because two antennas can co-exist with each other does not mean that energy from one will not find it's way into the other. I made a few tests with some dis similar antennas and found that at about 3 ft spacing, you could plan on a 30 dB coupling loss between antenna feedpoints. What does this mean? Well, 100 watts into your DS222-10RS may push 100 milliwatts of 222 MHz energy down into your nice new $3000 HF plus VHF transceiver. Now the loss is greater for vertical spacing than side by side spacing on yagis, but there is still enough energy flying around on these close spaced yagi stacks to cause all sorts of equipment failures. It is a good idea to check this out after you assemble your stacked array. If you will only transmit on one band at a time, the solution is simple. Disconnect the feedlines from any preamp or radio when not actually in use. This can be accomplished with coax relays. The more foolproof the installation, the less trouble you will encounter. Some problems that show up with RF power coming down feedlines are mysterious preamp failures, or preamp noise figures that creep up over time. Gross failures include fried frontends. While we are on the subject, those wire antennas that you attached to the same tower can cause problems as well. Make sure all tower mounted preamps have adequate bypassing on DC power lines to prevent HF rf energy from getting into your preamp or shack power supply! Failures have happened when these precautions were not implemented. A kilowatt on 75 meters can produce some large voltages on DC lines to preamps, rotators etc. Protective polarity diodes could start to act as rectifiers and cause three legged fuse syndrome within your prized preamp.. You can pop your sub micron gate FET in a sub millisecond! I have always checked my antennas for cross coupling after an installation. If you have a good microwave power meter, you have an excellent tool to make the test. The power heads are broadband typically from 10 MHz to at least 12 GHz. Power up your six meter station, and check all your other feedlines for power coming in through the "back door". Run the drive up slowly so as not to surprise yourself and pop your expensive power head. It is a good idea to put an attenuator in front of the head for safety sake. Plan on seeing about 30 to 50 dB of isolation on all the bands. This can also be done with the antennas on different masts and towers. In that case, you must rotate each antenna and find the point with maximum energy transfer. You may be surprised at the results. I saw over 1 watt of 222 energy coming down my 144 MHz feedline! Needless to say, I invested in a good filter!! If you do not have the means to measure such power levels, then you must assume that you have over 100 milliwatts on the other feedlines, and plan accordingly. Either disconnect the lines when not actually being used, or install filtering.
I hope this discussion has helped you to understand the characteristics of multiple antenna installations. Many bad situations that may arise, can be avoided through some initial planning, and by following these recommendations.
73
Dave K1WHS